Retail Experiential

Retail Experience

Optimising Retail Flow Through Strategic Store Design and Real-Time Visualisation

 

Challenge

The Royal Mint sought a 280m² London concept store design optimising customer flow based on dwell time and sales velocity, accommodating high-turnover collectibles, merchandise, the Historic Coin Experience, and secure bullion area whilst effectively segregating different customer types.

 

Solution

Store layouts prioritised customer journey optimisation: fast-selling collectibles at entrance for impulse purchases, centralised merchandise for maximum footfall, Historic Coin Experience at rear to extend dwell time, and invitation-only bullion area for premium customers. Originally visualised in 3ds Max with V-Ray, the project transformed into real-time walkthrough in Unreal Engine 4.26, then rebuilt in 5.3 with Quixel Megascans, Lumen lighting, and Nanite optimisation.

 

Outcome

The retail concept successfully balanced commercial objectives with brand storytelling through strategic spatial planning. The layouts effectively segregated customer types whilst maintaining cohesive experience, with real-time visualisation providing cutting-edge presentation tools and dynamic design exploration capabilities.

 

Copyright: Oakwood Agency

 

Deliveroo-ms

Creating Memorable Student Engagement Through Mobile Escape Room Experiences

 

Challenge

Deliveroo's campaign required a sophisticated experiential concept for student engagement, necessitating a mobile solution that could tour multiple student unions nationwide whilst creating immersive, food-themed experiences within a converted bus's spatial constraints.

 

Solution

The Escape Rooms concept featured a converted double-decker bus with multiple food-related puzzle rooms. Detailed 3D visualisations using 3ds Max with V-Ray prototyped the layout and mechanics, with each room presenting challenges culminating in a concealed sofa-lift exit revealing a ladder to the lower deck.

 

Outcome

The shortlisted concept demonstrated immersive experiential marketing's effectiveness over traditional methods. The 3D visualisations successfully communicated spatial design and user journey to stakeholders, elevating Deliveroo's strategy beyond food distribution to create shareable interactive experiences.

 

Copyright: Oakwood Agency

 

HMV Takeover

Elevating Home Entertainment Through Retail Point-of-Sale Design

 

Challenge

Warner Bros sought to promote 4K UHD platform benefits through an HMV campaign improving film visibility. Concepts needed to centre on experience, picture clarity, and cinematic aesthetics within high-tech brushed aluminium aesthetic, creating trial installations before developing cost-effective nationwide rollout.

 

Solution

Premium kits were developed for trial stores (Reading, Chelmsford, Oxford Street) featuring timber arches, gondola fins, magnetic strips, and hanging banners. The flagship Oxford Street store received enhanced treatment including wayfinding graphics, backlit wall bay, and TV promotional area. A lower-specification printed polypropylene solution enabled cost-effective rollout across 80 stores.

 

Outcome

The tiered approach successfully balanced premium flagship presentation with scalable national rollout economics. Trial stores established proof of concept, whilst the adapted solution enabled Warner Bros to extend brand presence across HMV's estate, demonstrating retail economics understanding through specification engineering.

 

Copyright: Oakwood Agency

 

The Toy Store

Creating Flagship Brand Experiences in Premium Retail Environments

 

Challenge

Mattel required immersive shop-in-shop solutions for Thomas the Tank Engine and Barbie brands within the 30,000 square foot Toy Store at Oxford Street's West One Shopping Mall, creating flagship destinations balancing entertainment with commercial selling space and high-tech appeal.

 

Solution

Initial non-selling concepts were refined to create integrated selling and experiential environments. The Thomas zone brought Sodor Island to life through immersive theming with photograph opportunities and interactive games. The Barbie area featured Fashion theme with interactive catwalk and outfit design studio.

 

Outcome

Flagship-quality brand zones elevated customer experience in premium Oxford Street location. The refined approach combining experiential elements with selling space proved commercially successful. The zones established new standards for toy brand retail experiences in flagship environments.

 

Copyright: Oakwood Agency

 

Eat. Drink. Be.

Transforming a Jewellery Shop in Historic Winchester into a Contemporary Coffee Shop

 

Challenge

An existing jewellery shop in the centre of Winchester required repurposing into a coffee shop. The challenge involved proposing appropriate colour schemes, fixtures, and fittings whilst maintaining consultation throughout the fit-out process until the cafe opened to the public.

 

Make it stand out

General colour schemes, fixtures, and fittings were proposed and once established, interior visuals were generated. The consultation process continued throughout the fit-out process, providing design guidance and visualisation support until the cafe opened to the public.

 

Make it stand out

The project successfully transformed the jewellery shop into a functioning coffee shop. The ongoing consultation process ensured design intent was maintained throughout implementation, with interior visualisations providing clear direction for contractors and stakeholders.

 

Copyright: Oakwood Agency

 

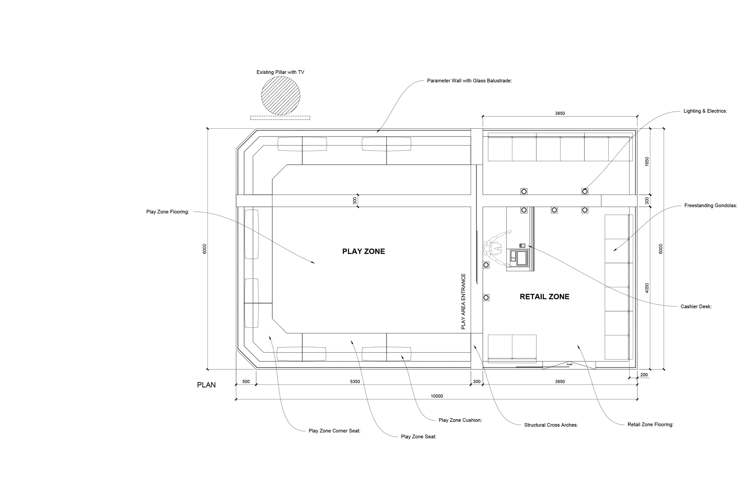
Airport Innovation

Navigating Complex Regulations for the Fisher Price Airport Retail Space & Play Area

 

Challenge

Fisher-Price required a pop-up shop within Gatwick Airport's South Terminal targeting families awaiting flights, providing secure soft play alongside retail space. The 'Airside' installation demanded materials exceeding standard retail specifications to meet stringent airport safety requirements.

 

Make it stand out

A dual-function unit integrated secure soft play with retail merchandising. Extensive research informed material selection ensuring compliance with fire and safety requirements significantly exceeding retail standards. Specialist construction teams were coordinated through complex airport security protocols within tight timeframes.

 

Make it stand out

The Fisher-Price airport play area successfully provided valuable service to travelling families whilst creating commercial retail presence in unique environment. The project demonstrated capability to navigate complex regulatory environments and coordinate specialist teams within highly constrained operational contexts.

 

Copyright: Oakwood Agency

 

POS Solutions

In-Store Displays: Wall Bays, FSDUs, CDUs, Pop-Ups & Shop-in-Shop Environments

 

Copyright: Oakwood Agency